【項目名稱】:融創中心
【項目面積】:217㎡
【設計風格】:中式風格
【設計主創】:閆振明
╱案例初印象Impression╱
碧云天,黃葉地,
秋色連波,波上寒煙翠。
山映斜陽天接水,
芳草無情,更在斜陽外。
黯鄉魂,追旅思,
夜夜除非,好夢留人睡。
明月樓高休獨倚,
酒入愁腸,化作相思淚。─范仲淹《蘇幕遮·懷舊》
╱設計詮釋annotation╱
此案例為石家莊金舍裝飾-融創中心217平米中式風格裝修案例賞析。以內心寧靜、清凈恬淡、超凡脫俗的生活觀和精神曠達為核心的適意人生哲學,使審美情趣趨向平淡幽遠的閑適之情。為孤高清逸和獨往獨行不羈的人文精神追求,作了最好的注釋。設計中的一點一滴正是為中國掮客文人所塑造的一種難能可貴的中華風骨。誰家陌上少年郎,鮮衣怒馬,唱出夢幻,唱破初曉,唱盡萬種風情,回憶里,春色正好,歸來兮依然少年。
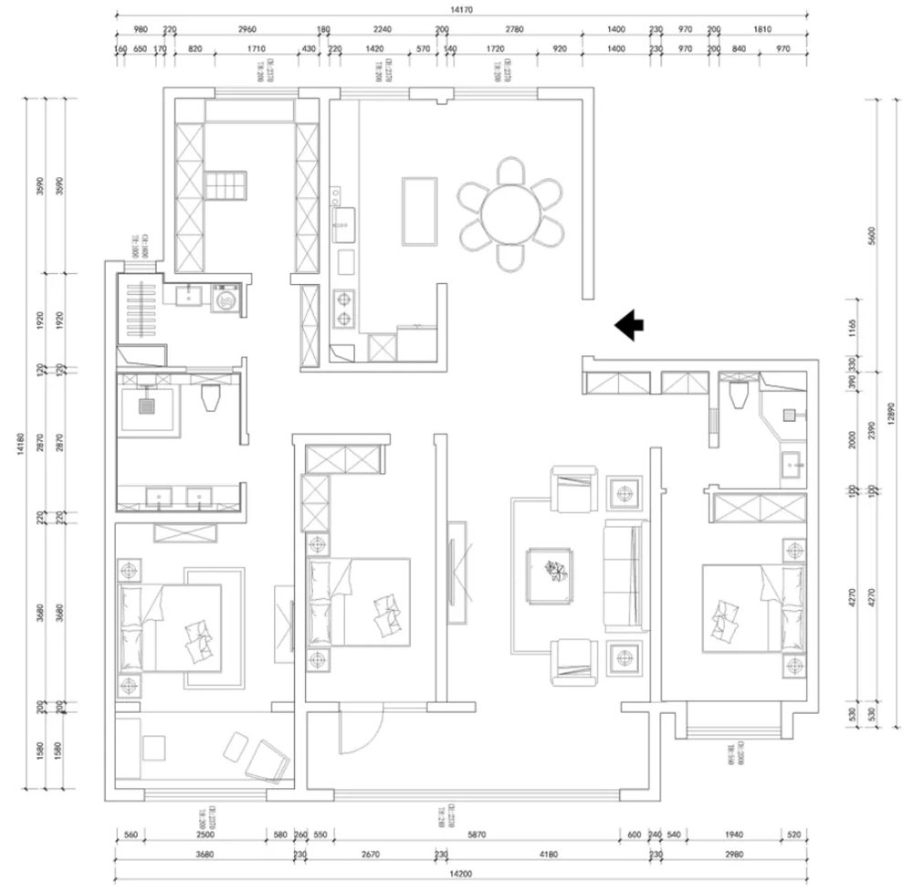
丨平面圖—Plan丨

丨客廳—Living Room丨



丨餐廳—Dining Room丨


丨玄關—vestibule丨


丨臥室—Bedroom丨



丨換衣間—Fitting room丨

人生如此,朗月清風,夢蝶三生,當圖一醉。