【項目名稱】:榮盛華府
【項目面積】:215㎡
【設計風格】:新中式風格
【設計主創】:盧娜
╱案例初印象Impression╱
傳統中式風格沉淀千年經過無數歲月滄桑與歷史的洗禮仍然魅力不減,散發著東方格調新中式風格沒有以往中式的濃墨重彩以素雅之姿演繹更具意境的新中式之態
╱設計詮釋annotation╱
此案例為石家莊金舍裝飾-榮盛華府215平米新中式風格裝修案例。新中式風格傳承了傳統中式風格的文化底蘊,又將現代審美融入其中,將含蓄內斂的美學韻味徐徐呈現在了眾人面前,令人沉醉、留戀。似有靜謐、似含古韻,思想不禁浮想聯翩,無法掩飾一個人的精神世界,是心靈和性情的外化之地。中式元素與現代材質搭配,既有文化的傳承又不會全盤固守傳統,是現代的思想與千年來的文化彼此融合與碰撞。
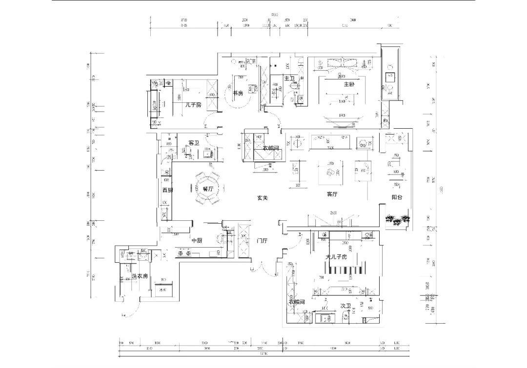
丨平面圖—Plan丨

丨客廳—Living Room丨



丨餐廳—Dining Room丨

丨玄關和走廊—Vestibule & Corridor 丨





丨茶室—Tearoom丨
